HUSET I SKOGEN

Bolig med atrium
Status: Ferdig bygget
Sted: Hvasser
Oppdragsgiver: Privat
År: 2012
Størrelse: 137 m² BRA

Foto: Niclas Hart

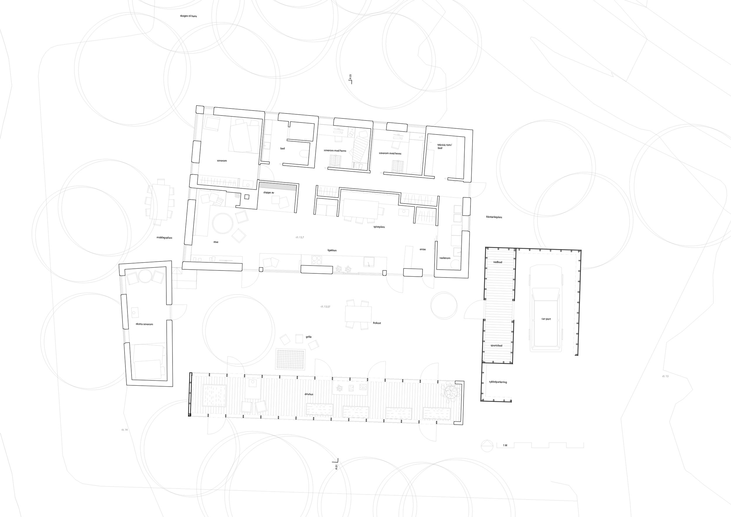
Boligen er tenkt som et sted å vokse opp og et sted å bli gammel. Intensjonen er et hjem der et helt liv kan leves. Den ene av barna i huset har Down syndrom. Han har behov for litt mer mulighet til å trekke seg tilbake enn oss andre. Det er fint at han kan være litt skjermet når han har lyst. For mammaen er det fint at han kan bevege seg overalt på tomten uten at hun trenger å bekymre seg. Det er godt for begge to at det er tydelige avgrensninger. I skogen kan man leke eller drikke kaffe innenfor et gjerde. Gjerdet går an å passere, men man vet når man er hjemme, man vet når man går ut. Inne i atriumet er man skjermet for alt som er utenfor, men ute. Hvis man vil kan man gå inne bak store vinduer og titte ut i atriumet. Noen ganger er det godt å sitte oppe på hemsen, inne på soverommet og lese Donaldblad. På Hvasser er det ofte fint vær, men nesten alltid vind fra syd og syd-vest. Drivhuset slipper lyset inn, men skjermer for vinden. Boligen er både ute og inne.

Et ildsted. Mye plass til å lagre ved. Et kjøkken å samles i. Et stille godt fellesrom. Soverom med fint lys. En plass i le bak et drivhus mellom furutrær. Mat på bordet. Fra et soverom til en kaffe mellom planter i aprilsol.

Huset er bygget som et “økologisk Aktivhus”. Omtrent alle bygningsmaterialene er fornybare og miljøvennlige. Konstruksjon, ytterkledning, vegger, tak og gulv er av norsk trevirke. Isolasjonen består av trefiber. Huset er naturlig ventilert, og vedfyring benyttes til oppvarming både i hovedhuset og annekset.

1 Plan 1-100.jpg